产品展示

Product Display

联系我们

Contact Us

联系人:陆经理

手机:15105515116

网址:sunmiro.com

地址:安徽省芜湖市三山区临江工业园区(夏家湖路1号)

粮食干燥设备

当前位置:首页 > 产品展示 > 粮食干燥设备

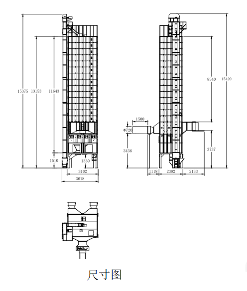
烘干机5HXH-30E
主要参数配置:

A:主要钢材品牌马钢:主机板材采用2.0冷板,围板1.2冷板。
B:底部大料斗、流管、网板等粮食易磨损部位均采用高品质不锈钢材料。
C:提升机电机3.7kW,斜流风机5.5kW两台,拨粮轮电机750W,除尘风机370W,甩盘电机550W,总功率16.37kW。
D:承重核心传动部位轴承采用原装进口轴承。
E:控制柜采用PLC控制、断路器采用国产优质品牌、交流接触器、热继电器采用进口品牌,水分仪:国产通用水分仪。
F:畚斗皮带镇江三维。

标准配置范围:
自动调风装置—大风机导风筒L=1.5米(含回风阀),每个项目点配一套烘干机自带爬梯。有自动调风装置、中部出料有放粮不锈钢管(L=6米)及钢丝软管(L=2米)、放料斗、上三通,底部下流管连接件。底部出料无放粮管、放料斗、钢丝软管、有顶部上流管连接件。提升机后置中部出料导风筒可加长0.5米。


优势:
一键式智能化电控系统,操作简单。
提升机安装专用防破碎装置,有效降低破碎率。该机结构紧凑,设计先进,取消上、下绞龙结构,降低物理性破碎。
提升机进粮采用倾斜溜管,利用谷物自重自由下落,减少挤压破碎;大干燥段设计,强度高不变形,干燥层合理排粮流速稳定,干燥均匀,干燥速率较高。具有烘干均匀、破碎率低、温控可调、水分在线监测、拨粮轮电机采用双速电机,配置快速放粮装置等优点,该机有专用除尘风机,节能环保,工作现场排放粉尘小,自动化控制程度高,烘后谷物品质好等优点





上一篇:烘干机5HXH-30D
下一篇:烘干机5HXH-30C