产品展示

Product Display

联系我们

Contact Us

联系人:陆经理

手机:15105515116

网址:sunmiro.com

地址:安徽省芜湖市三山区临江工业园区(夏家湖路1号)

粮食干燥设备

当前位置:首页 > 产品展示 > 粮食干燥设备

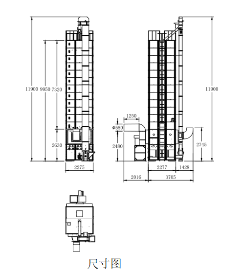
烘干机5HXH-20B
主要参数配置 :

A:主要钢材品牌马钢:主机板材采用2.0冷板,围板1.2冷板。
B:大斜板、绞龙叶片、循环出料口、网板等易磨损部位均采用高品质不锈钢材料。
C:提升机电机2.2kW,离心风机7.5kW,下绞龙电机1.5kW,拨粮轮电机400W,除尘风机370W,甩盘电机550W。总功率:12.52kW。
D:承重核心传动部位轴承采用原装进口轴承。
E:控制柜采用PLC控制、断路器采用国产优质品牌、交流接触器、热继电器采用进口品牌,水分仪:国产通用水分仪。
F:畚斗皮带镇江三维


标准配置范围:
进风弯头—大风机导风筒L=1.25米
(含回风阀),每个项目点配一套烘干机自带爬梯。无自动调风装置、有放粮不锈钢管(L=4米)及钢丝软管(L=2米)。


优势:
一键式智能化电控系统,操作简单。
提升机安装专用防破碎装置,有效降低破碎率。该机结构紧凑,设计先进。大风量设计,出风口热风机负压吸风,平衡风量、减少阻力、提高热风利用率。干燥层合理排粮流速稳定,干燥均匀,干燥速率高。具有烘干均匀、破碎率低、水分在线监测等优点,该机有专用除尘风机,节能环保,工作现场排放粉尘少,自动化控制程度高,烘后谷物品质好等优点。无上绞龙,有下绞龙,适合厂房高度不高的用户。



上一篇:烘干机5HXH-15B
下一篇:烘干机5HXH-20C